Quadrilocale in vendita

Succivo, Via Generale Cadorna
€ 280.000
3 locali 3 locali
125 Mq 125 Mq
2 bagni 2 bagni

Quadrilocale in vendita

Succivo, Via Generale Cadorna

Descrizione annuncio

In pieno centro a Succivo, in una posizione ideale per chi ama vivere la città a piedi e avere ogni servizio a portata di mano, nasce un nuovo ed esclusivo progetto residenziale.

Il complesso si compone di tre scale indipendenti, ciascuna con solo due unità abitative: una al primo e una al secondo piano, garantendo così privacy e tranquillità.

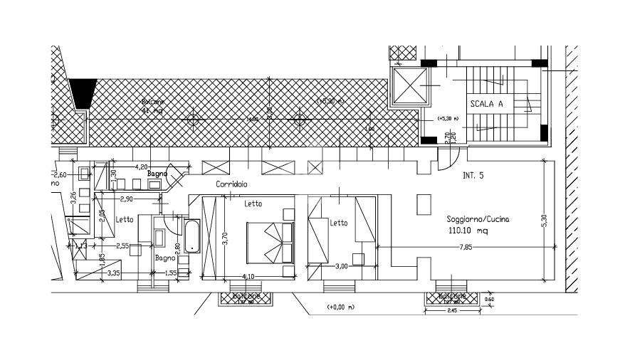
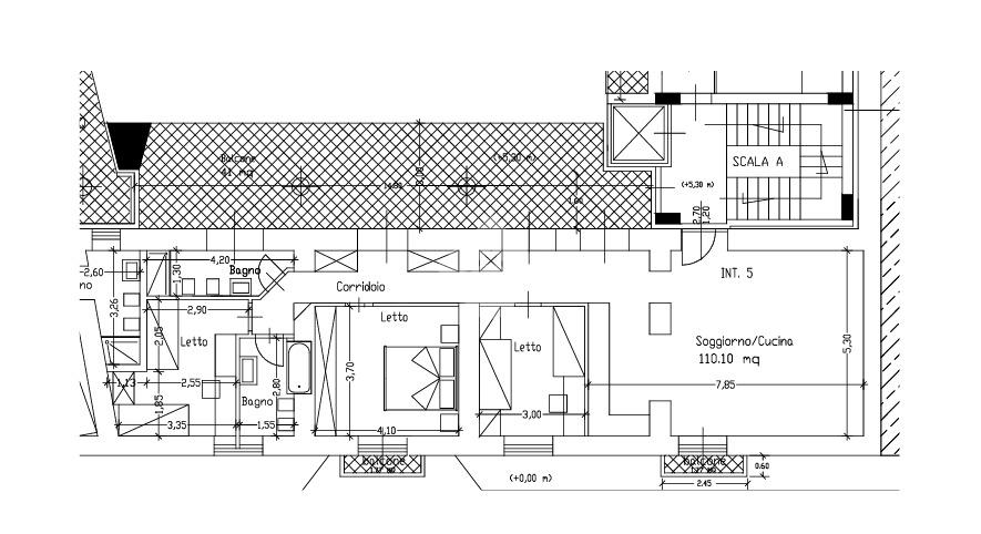
Proponiamo in esclusiva un elegante appartamento al secondo piano della scala A, con una superficie interna di circa 110 mq, così distribuiti:
-Ampia zona living open space con cucina a vista e zona salotto
-Tre camere da letto spaziose
-Due bagni moderni e funzionali
-Splendido terrazzo a livello di circa 40 mq, ideale per pranzi all’aperto, momenti di relax o per godersi la bella stagione.

Completa la proprietà un comodo posto auto coperto e riservato.

L’immobile sarà realizzato con finiture moderne e di alta qualità, con la possibilità di personalizzare gli ambienti interni secondo i propri gusti ed esigenze.

Una soluzione perfetta per chi cerca comfort e una posizione centrale senza rinunciare alla tranquillità.

Fissa il tuo appuntamento; prima della visita potremmo - qualora tu ne avessi bisogno - offrirti una consulenza finanziaria del tutto gratuita in ufficio e senza alcun tipo di vincolo grazie al supporto dei colleghi.

Chiama allo 0818919854 per un sopralluogo.

Mostra tutto

Nelle vicinanze

Trasporto pubblico Trasporto pubblico
Sant'Antimo-Sant'Arpino
Sant'Antimo-Sant'Arpino
2,1 Km
Ricariche auto elettriche Ricariche auto elettriche
Stazione Frattamaggiore - Grumo Nevano | EnelX
3,0 Km
Scuole Scuole
Scuola Media Statale "G. Ungaretti"
320 m
Istituto Comprensivo "E. De Amicis"
380 m
Scuole
760 m
Vincenzo Rocco
1,3 Km
Istituto Paritario "Mondo Libero"
1,4 Km
Farmacia Farmacia
Farmacia
1,6 Km
Farmacia Cennamo
2,6 Km
Ospedali Ospedali
Ospedale Civile di Frattamaggiore "San Giovanni di Dio"
2,5 Km
Ospedale Marines USA
3,0 Km
Supermercati Supermercati
Lidl
1,6 Km
SuperDay
1,8 Km
MD
2,0 Km
Conad Superstore
2,2 Km
Sigma
2,3 Km
Negozi Negozi
Officine Nazzaro 1951
2,6 Km
Il Mercatone
2,6 Km
Bar Bar
Blasus Bar
590 m
Caffetteria Vitale
1,5 Km
Bar
1,7 Km
Ristoranti Ristoranti
Cibificio Provinciale
290 m
Milord Pizzaagogo
710 m
Pizzeria "Da Lioniello"
800 m
Pizzeria "New Old Village"
880 m
BRP Cafè
1,1 Km
Mostra tutto

Caratteristiche

Rif.:
61115811
Piano:
2 di 2 con ascensore (Piano medio)
Posti auto:
1
Balconi:
2
Terrazzi:
1
Camere da letto:
3
Mostra tutto
Prezzo Prezzo
€ 280.000
Rata mutuo Rata mutuo
€ 1.319 / mese
Proponi il tuo prezzoProponi il tuo prezzo

Classe Energetica

Questo immobile è esente da classe energetica
Anno di costruzione:
2026
Riscaldamento:
Autonomo
Tipo impianto:
A radiatori
Tipo alimentazione:
Metano

Ti interessa visionare l'immobile?

Fissa un appuntamento  Fissa un appuntamento

Richiedi informazioni

Clicca su Leggi per aprire l'informativa
* Questi campi sono obbligatori

Calcola il tuo mutuo

Semplice e senza impegno
Anticipo

( % )
Mutuo

( % )

pochi semplici passi

inserisci i tuoi dati
Questionario completato
Grazie per aver richiesto un appuntamento senza impegno con un nostro Consulente del Credito e Assicurativo.

Hai inserito correttamente tutti i dati necessari e a breve riceverai una e-mail con un link da convalidare per inviare i tuoi dati.
Affiliato
Studio Sant'Arpino - Cesa Srl
Via De Gasperi, 111 81030 Sant'Arpino (CE)

Il nostro staff


  • Salvatore Prisco
    Affiliato
Via De Gasperi, 111 81030 Sant'Arpino (CE)
Zona: S.Arpino - Cesa
Mostra su mappa
Orari: lunedi al venerdi 9:00-13:00/15:30-20:00 sabato 9:00-13:00/16:00-18:00
Affiliato
Studio Sant'Arpino - Cesa Srl
Via De Gasperi, 111 81030 Sant'Arpino (CE)

2026 Tecnocasa Franchising S.p.A. - P. IVA 08365160152 - Via Monte Bianco 60/A 20089 Rozzano (MI). Ogni agenzia ha un proprio titolare ed è autonoma. Privacy policy | Policy utilizzo | Cookie policy