Villa singola in vendita

Sant'Arpino, Via Leonardo Da Vinci
Informazioni in agenzia
4 locali 4 locali
350 Mq 350 Mq
2 bagni 2 bagni

Villa singola in vendita

Sant'Arpino, Via Leonardo Da Vinci

Descrizione annuncio

SCOPRI LA TUA VILLA DEI SOGNI A SANT'ARPINO

Presentiamo una straordinaria opportunità di acquisto: una villa in corso di costruzione, unica nel suo genere.

Situata in una delle zone più richieste di Sant’Arpino a pochi passi da Frattamaggiore e Grumo Nevano, questa incantevole soluzione abitativa è perfetta per chi cerca privacy e vicinanza ai principali servizi.

LIBERA SU TRE LATI, ha una superficie complessiva di 140 mq sviluppata su due livelli.
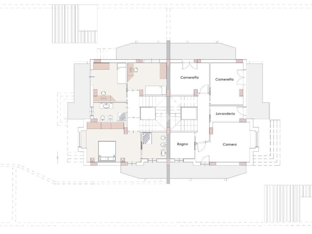
Il layout interno di progetto (modificabile dal richiedente) prevede:
-al piano terra salone living e cucina a vista con uscita nel giardino, bagno finestrato e uno studio accessibile anche da un secondo ingresso per la massima privacy;
-al piano primo la camera matrimoniale, due camerette, bagno finestrato, lavanderia e/o bagno in camera.

Completa la struttura un AMPIO GIARDINO PRIVATO dove è possibile realizzare una splendida piscina a sfioro già autorizzata in progetto.
Un comodo patio esterno per la rimessa degli autoveicoli fa da cornice ad una ricercata architettura moderna e razionale.

L’immobile sarà trasferito in corso di costruzione per permettere la massima personalizzazione degli ambienti e delle finiture da ultimare secondo i propri gusti estetici e le proprie esigenze abitative e rendere unica la villa dei propri sogni.

Fissa il tuo appuntamento; prima della visita potremmo - qualora tu ne avessi bisogno - offrirti una consulenza finanziaria del tutto gratuita in ufficio e senza alcun tipo di vincolo grazie al supporto dei colleghi.

Mostra tutto

Nelle vicinanze

Trasporto pubblico Trasporto pubblico
Sant'Antimo-Sant'Arpino
Sant'Antimo-Sant'Arpino
380 m
Frattamaggiore-Grumo Nevano
Frattamaggiore-Grumo Nevano
1,6 Km
Ricariche auto elettriche Ricariche auto elettriche
Stazione Frattamaggiore - Grumo Nevano | EnelX
1,5 Km
Brasiello Carservice | EnelX
2,7 Km
Scuole Scuole
Scuole
530 m
Vincenzo Rocco
930 m
Istituto Paritario "Mondo Libero"
970 m
Istituto Comprensivo Matteotti-Cirillo
1,4 Km
Istituto Comprensivo "E. De Amicis"
1,5 Km
Farmacia Farmacia
Farmacia Papa Antonia
1,6 Km
Farmacia D'Amore
1,6 Km
Farmacia
1,7 Km
Farmacia Vivo
2,0 Km
Farmacia Manna
2,2 Km
Ospedali Ospedali
Ospedale Civile di Frattamaggiore "San Giovanni di Dio"
1,7 Km
Supermercati Supermercati
MD
240 m
Conad Superstore
310 m
Sigma
660 m
Lidl
1,4 Km
Supermercato La Piramide
1,5 Km
Negozi Negozi
Officine Nazzaro 1951
1,3 Km
La Cremiere
1,5 Km
Negozi
1,7 Km
Sufi Market
1,7 Km
Marketpiù
1,9 Km
Bar Bar
Bar della Stazione
1,6 Km
Caffetteria Kennedy
1,7 Km
Bar
1,7 Km
Caffè Centrale
1,7 Km
Caffetteria Cappella
1,8 Km
Ristoranti Ristoranti
Tarumbó
420 m
Pizza a ruoto da Dino
1,2 Km
Pizzeria Partenopea
1,5 Km
Milord Pizzaagogo
1,5 Km
Il Farè
1,6 Km
Mostra tutto

Caratteristiche

Rif.:
61123532
Piano:
2 di 2 (Piano ammezzato)
Posti auto:
3
Balconi:
2
Camere da letto:
3
Arredamento:
Assente
Mostra tutto
Prezzo Prezzo
Informazioni in agenzia
Proponi il tuo prezzoProponi il tuo prezzo

Classe Energetica

Questo immobile è esente da classe energetica
Anno di costruzione:
2026
Riscaldamento:
Assente

Ti interessa visionare l'immobile?

Fissa un appuntamento  Fissa un appuntamento

Richiedi informazioni

Clicca su Leggi per aprire l'informativa
* Questi campi sono obbligatori
Affiliato
Studio Sant'Arpino - Cesa Srl
Via De Gasperi, 23 81030 Sant'Arpino (CE)

Il nostro staff


  • Ciro Russo
    Collaboratore

  • Salvatore Prisco
    Affiliato

  • Valentina Lettera
    Coordinatrice

  • Antonio Montieri
    Collaboratore
Via De Gasperi, 23 81030 Sant'Arpino (CE)
Zona: S.Arpino - Cesa
Mostra su mappa
Orari: lunedi al venerdi 9:00-13:00/15:30-20:00 sabato 9:00-13:00
Affiliato
Studio Sant'Arpino - Cesa Srl
Via De Gasperi, 23 81030 Sant'Arpino (CE)

2026 Tecnocasa Franchising S.p.A. - P. IVA 08365160152 - Via Monte Bianco 60/A 20089 Rozzano (MI). Ogni agenzia ha un proprio titolare ed è autonoma. Privacy policy | Policy utilizzo | Cookie policy